arkitects
---skin---
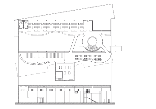
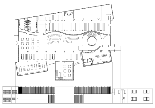
Project: Public Building
Library
Location: Milano
Year: 2004
N° Collaborators: 1